揀選車



| 高效率 | 高穩定性 |
| CAN-Bus技術減少維護,提高整體性能 | 低電池保護,延長了電池的使用壽命 |
| 100%AC系統,確保高性能和穩定性,操作和維護簡便。 | 低重心確保車輛運行更穩定 |
| 先進的控制系統減少故障率,提高工作效率 | 可靠的液壓系統確保貨物順利堆放在貨架上 |
| 高安全性 | 易于維護 |
| 緊急按鈕開關使操作更加安全和可靠 | 交流電機減少了碳刷的更換 |
| 新的桅桿結構設計提供了廣闊的操作視野 | 多LCD數字顯示器提供快速和準確的車輛狀態監測 |
| 再生制動,減少電力消耗,延長電池工作時間 | |
| 液晶顯示屏和攝像頭使倒車時的操作更加安全 |
|
| 手動應急閥確保在切斷電源后更加安全。 |


|
型號 |
QDJ-V2 |
QDJ-V2 |
QDJ-V2 |
QDJ-V3 |
QDJ-V3 |
|
|
動力形式 |
電動 |
電動 |
電動 |
電動 |
電動 |
|
|
操作類型 |
站立 |
站立 | 站立 | 站立 | 站立 | |
|
駕駛式荷載=貨架+貨叉 |
Q(kg) |
400kg |
400kg |
400kg |
400kg |
400kg |
|
貨架最大承載荷 |
Q1(kg) |
300kg |
300kg |
300kg |
300kg |
300kg |
|
驅動輪/承載輪材質 |
PU |
PU |
PU |
PU |
PU |
|
|
驅動輪尺寸(直徑x寬度)? |
mm |
F250X75 |
F250X75 |
F250X75 |
F250X75 |
F250X75 |
|
?承載輪直徑(直徑x寬度) |
mm |
F152X75 |
F152X75 |
F152X75 |
F152X75 |
F152X75 |
|
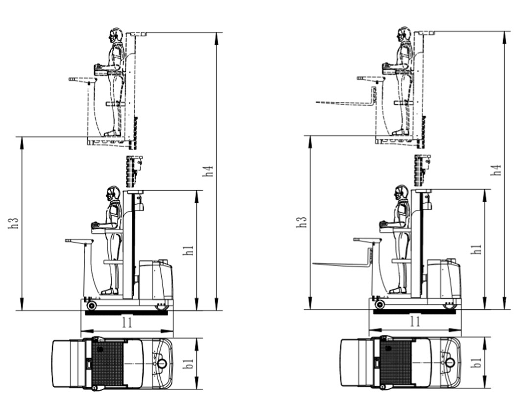
作業時整車最大高度 |
h1(mm) |
1595 |
1700 |
1955 |
1700 |
2230 |
|
門架降低時高度 |
h4(mm) |
4630 |
4985 |
6075 |
4985 |
7055 |
|
站臺起升高度 |
h3(mm) |
3200 |
3500 |
4200 |
3500 |
5000 |
|
車體長度 |
l1(mm) |
1500 |
1500 |
1500 |
1510 |
1510 |
|
貨架展開整車長度 |
1745 |
1745 |
1745 |
1745 |
1745 |
|
|
車體寬度 |
b1(mm) |
832 |
832 |
832 |
832 |
832 |
|
操作手柄高度 |
h5(mm) |
1065 |
1065 |
1065 |
1065 |
1065 |
|
軸距中心離地間隙 |
M2(mm) |
81 |
81 |
81 |
81 |
81 |
|
通道寬度 |
Ast(mm) |
1930 |
1930 |
1930 |
1835 |
1835 |
|
轉彎半徑 |
Wa(mm)? |
1405 |
1405 |
1405 |
1405 |
1405 |
|
行駛速度(一檔) |
Km/h |
5 |
5 |
5 |
5 |
5 |
|
行駛速度 (二檔) |
Km/h |
2.5 |
2.5 |
2.5 |
2.5 |
2.5 |
|
行駛速度 (三檔) |
Km/h |
1.2 |
1.2 |
1.2 |
1.2 |
1.2 |
|
行駛速度(四檔) |
Km/h |
0.6 |
0.6 |
0.6 |
0.6 |
0.6 |
|
最大爬坡度滿載/空載 |
% |
-? |
- |
- |
- |
- |
|
驅動電機功率 |
1.5 |
1.5 |
1.5 |
1.5 |
1.5 |
|
|
起升電機功率 |
KW |
3 |
3 |
3 |
3 |
3 |
|
電瓶電壓/穩定容量 |
KW |
24V/210Ah |
24V/210Ah |
24V/210Ah |
24V/210Ah |
?- |
|
轉向方式 |
V/Ah |
EPS |
EPS |
EPS |
EPS |
EPS |
|
驅動控制類型 |
AC |
AC |
AC |
AC |
AC |
|
你有問題、評論或一般咨詢?我們重視你的建議。請給我們留言! 請填寫下面的表格,向我們問好,或向我們提出任何問題或意見。